スタンディングタイプ 豚頭落としはいつもの作業で!!
処理能力が大きい連続タイプはこちら

ノーマル作業

ノーマル作業

後ろ切り作業
主な特徴
  • と体は横臥姿勢なので頭落とし作業は通常の作業と同様です。
  • ベット先端部が頸椎付近にセットされますので、骨を容易に折る事が出来ます。
  • フットペダル操作なので両手は作業と消毒に専念できます(下げのみ)。
  • 機械切りで問題な歩止まり減はありません。
  • 200頭〜250頭/時のWタイプもあります。
バックサポート(スタンディングタイプ)・仕様
処理能力 1名で220頭/時まで
駆動 エアーシリンダー
仰角 最大60°
ベット SUS及び合成樹脂
操作 フットペダル(下げのみ)
洗浄消毒 上部自動シャワー
フレーム SS+メッキ仕上げ


◆◆◆工業所有権公開NO.83575号◆◆◆


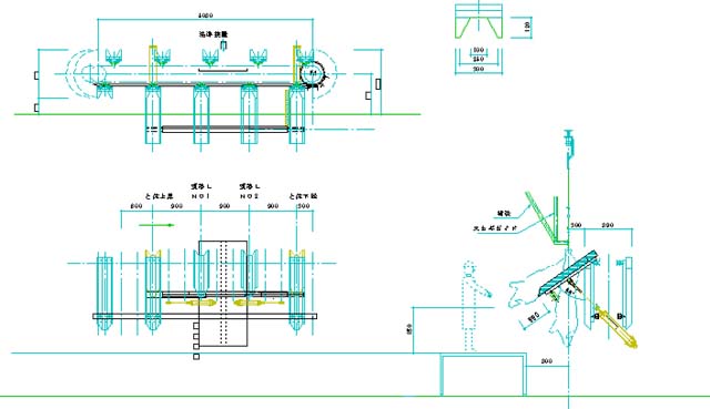
連続式 連続式なので処理能力アップ!
主な特徴
  • サポートベッドをリターンボックス内で自動熱湯消毒することも出来ます。
  • 解体線コンベヤーと連動可能なインバーター制御。
  • と体が横臥姿勢で移動するので2名で連続作業が出来ます。
  • と体装填、離脱が自動な為、作業時間に無駄がありません。
バックサポートコンベヤー(連続式)・仕様
処理能力 2名で360頭/時まで
仰角 最大55°
ベット SUS及び合成樹脂
操作 全自動
洗浄消毒 リターン側ボックス内シャワー
フレーム SUS製
と体ピッチ 900mm


◆◆◆工業所有権公開NO.83575号◆◆◆

バックサポートコンベヤー
納入実績

名称 納入年 都道府県
千葉県食肉公社 平成12年 千葉県
(株)東三河食肉流通センター 平成13年 愛知県
(株)阿久根食肉流通センター 平成13年 鹿児島県
(株)茨城県中央食肉公社 平成13年 茨城県